- Erstellt von Renate Hauer, zuletzt aktualisiert von Alyssa Fries am 21. Oktober 2025 Lesedauer: 4 Minute(n)
AKTUELLES
21.10.2025; Wartungsarbeiten SAA - Gebäude 5500
Sehr geehrte Damen und Herren,
am Samstag und Sonntag den 24/25.10.25 von ca. 08:00 Uhr bis ca. 24:00 Uhr finden Wartungsarbeiten an der SAA-Anlage im Gebäude Maschinenwesen statt.
Hierbei kann es zu Geräuschbelästigungen kommen (z.B Sprachdurchsagen)
Die Wartung führt die Fa. Comperi durch.
Vielen Dank für Ihr Verständnis!
---
Dear Sir or Madam,
On Saturday and Sunday, 24/25 October 2025, from approximately 8 a.m. to midnight, maintenance work will be carried out on the SAA system in the Mechanical Engineering building.
This may cause noise pollution (e.g. voice announcements).
The maintenance will be carried out by Comperi.
Thank you for your understanding!
AKTUELLES
22.09.2025; Kernbohrungen und Leitungsführung PV-Anlagen
Sehr geehrte Damen und Herren,
für den elektrischen Anschluss der PV-Anlangen im Maschinenwesen werden für die Verbindung von NSHV zur Anbindung der UV-PV an den drei Standorten im MW2, MW3 und MW4 noch Kernbohrungen benötigt.
Die beauftragte Firma wird voraussichtlich Ende nächster Woche oder Anfang Oktober mit den Arbeiten beginnen. Anschließend folgt die Firma EBS mit dem Ausbau der elektrischen Leitungsführung.
Die Arbeiten werden in den jeweiligen Bauteilen in den Übergängen zu den Hallen stattfinden.
Mit Lärmentwicklung muss gerechnet werden.
Bei Nachfragen, wenden Sie sich gerne an die Objektkoordination unter ok.tum.garching@regineering.com - eine genauere Terminierung erfolgt im Nachgang.
Vielen Dank für Ihr Verständnis!
AKTUELLES
18.09.2025; Sperrung barrierefreier Zugang Gebäude 5515
Ab heute, 18.09.2025, ist der barrierefreie Zugang zum ZSK Haus aufgrund von Bauarbeiten gesperrt. Die Arbeiten dauern ca. 4 Wochen.
Vielen Dank für Ihr Verständnis!
AKTUELLES
12.08.2025; Arbeiten in Magistrale KW 38 und 39
Sehr geehrte Damen und Herren,
Ich bitte um Kenntnisnahme, dass in der KW 38 und 39 defekte Verschraubungen an der Dachkonstruktion ertüchtigt werden.
Vielen Dank für Ihr Verständnis!
---
Dear Sir or Madam,
Please note that defective screw connections on the roof structure will be repaired in calendar weeks 38 and 39.
Thank you for your understanding!
AKTUELLES
28.07.2025; Schädlingsbekämpfung
Sehr geehrte Damen und Herren,
ab sofort läuft im Außenbereich des Maschinenwesens die Schädlingsbekämpfung gegen Mäuse. Es wurden Köderschienen installiert, welche in regelmäßigen Abständen kontrolliert werden.
Danke für Ihr Verständnis!
---
Dear Sir or Madam,
Pest control measures against mice are now underway in the outdoor area of the mechanical engineering department. Bait stations have been installed and will be checked at regular intervals.
Thanks for your understanding!
AKTUELLES
11.07.2025; Glasdachsanierung Magistrale Maschinenwesen
Sehr geehrte Damen und Herren,
ab dem 14.07.2025 beginnt die Glasdachsanierung in der Magistrale des Maschinenwesens. Bitte um Beachtung der einzelnen Termine:
- Kranaufbau: 14.07.2025
- Bauzaunaufbau: 14.07.2025
- Gerüstaufbau: 15.07.2025
- Baubeginn: ab 16.07.2025
Die Dauer der Sanierung ist auf ca. 4 Wochen geplant bis zur Fertigstellung.
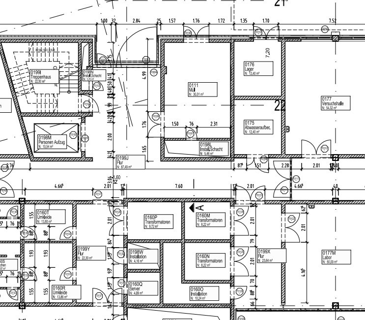
Beachten Sie auch die Fluchtwege in folgendem Schaubild:
Danke für Ihr Verständnis!
---
Dear Ladies and Gentlemen,
From 14 July 2025, the renovation of the glass roof in the main hall of Mechanical Engineering will begin. Please note the individual dates:
- Crane erection: 14.07.2025
- Construction fence erection: 14.07.2025
- Scaffolding erection: 15.07.2025
- Start of construction: from 16.07.2025
The duration of the refurbishment is planned for approx. 4 weeks until completion.
Please also note the escape routes in the following diagram:
Thanks for your understanding!
AKTUELLES
30.04.2025; laufender Austausch abgelaufener Feuerlöscher MW
Sehr geehrte Damen und Herren,
wie Sie eventuell bereits mitbekommen haben, werden derzeit alle abgelaufenen Feuerlöscher erneuert bzw. ausgetauscht. Da das gesamte Maschinenwesen betroffen ist, werden die Arbeiten noch etwas andauern und manche Bereiche erst etwas später an der Reihe sein.
Vielen Dank für Ihr Verständnis!---Dear Sir or Madam
As you may have already realised, all expired fire extinguishers are currently being replaced. As the entire engineering department is affected, the work will take some time and some areas will not be ready until a little later.
Thank you for your understanding!

Bleiben Sie informiert!
Als angemeldeter Besucher (TUM-Kennung erforderlich) dieser Seite können Sie sich mittels des Buttons "Beobachtung" über Änderungen informieren lassen. So halten wir Sie über aktuelle, Ihr Gebäude betreffende Ereignisse auf dem Laufenden.
Externe Nutzer ohne TUM-Kennung erhalten im Störungsfall eine Email vom zuständigen Gebäudemanagement. Bitte lassen Sie sich hierfür über unser Kontaktformular in das Verzeichnis der TUM-externen Nutzer eintragen.
Eine detaillierte Anleitung finden Sie in unseren FAQ.